



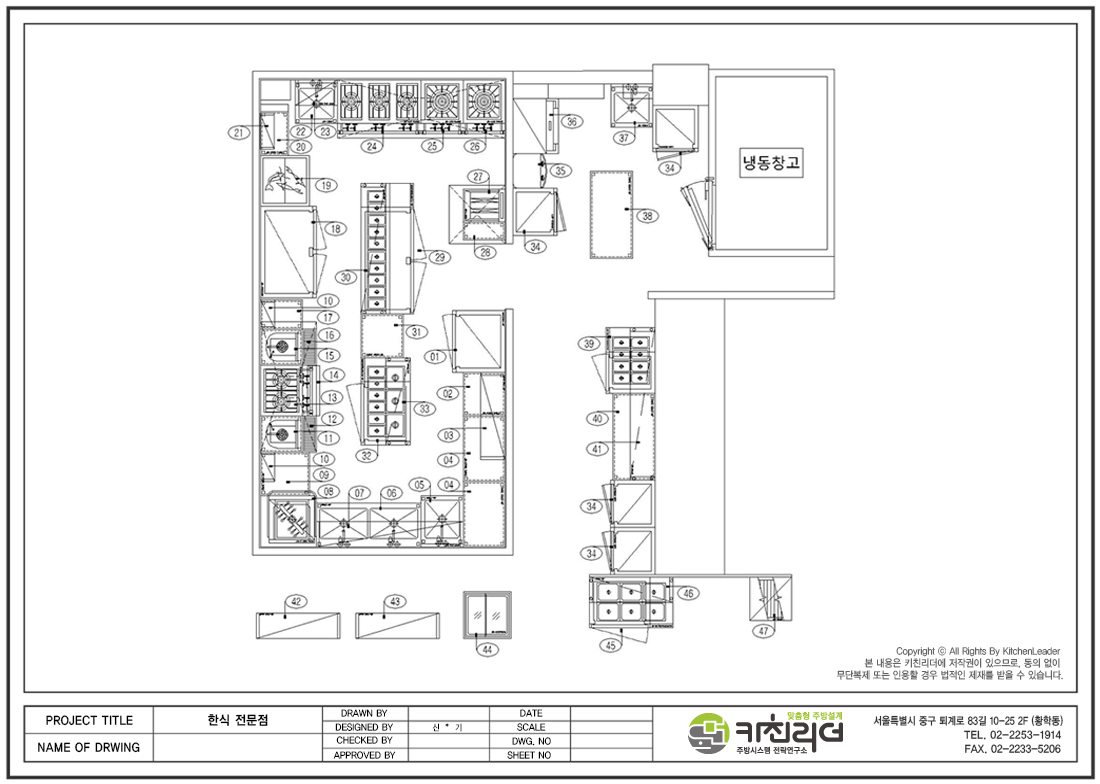
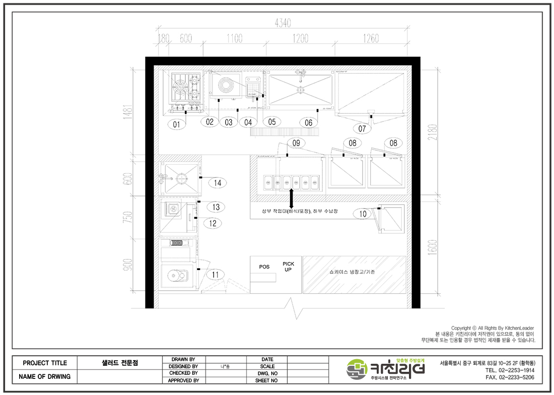
빠르고 신속한 #로켓도면✅사전 방문 예약을 하시면낮이고 밤이고 주방도면을 당일에 제작해 드립니다!※단, 주방은 미리 실측하셔서 키친리더를 방문해 주셔야 합니다.※로켓도면 사전예약 방문 신청※02-2253-1914 or 010-2882-1914 로 전화주세요!주방도면 및 주방컨설팅을 의뢰 하실 분들은 아래 내용을 간단히 메모하셨다가 상담시 말씀해 주시면 좋습니다. 먼저 인테리어 공사가 먼저 진행되는 만큼, ① 캐드 파일이 있는지 확인해 주시고, 있다면 첨부해 주세요.② 매장이 1층인지, 2층인지, 매장의 주출입구는 어디인지 체크해 주세요.③ 공사가 진행 예정이거나, 진행중인 경우 주방평수 조절 가능하신지 확인해 주세요.④ 테이블 수나 좌석수, 수용인원은 어느정도 예상하시는지 확인해 주세요. ⑤ 어떤 메뉴를 요리하시는지 체크해 주세요.⑥ 기본적인 기기외 요구하는 기기가 있다면 체크해 주세요.⑦ 인테리어 상의 문제로 기기가 들어가지 못하는 경우(높이, 넓이 등)은 반드시 체크해 주세요. 위의 내용을 미리 체크하시고, 전화주시면 훨씬 상담에 도움이 됩니다 ^*^오시는길 : 글로벌키친리더 - 네이버 지도 (naver.com)
2024-01-022021-08-12
※ 본 콘텐츠는 창업앤프랜차이즈의 사전 허락을 얻고 게시됨을 알려 드립니다.
2023-02-02※ 본 콘텐츠는 창업앤프랜차이즈의 사전 허락을 얻고 게시됨을 알려 드립니다.
2023-01-26